m²
Planlösning – Ljungdahlsbacken
Här finner du planlösningar på 2 RoK, 3 RoK och 4 RoK.
2 RoK 61 kvm + balkong 15 kvm
Två lägenheter finns på varje våningsplan 1 till och med 6.
Klicka på planlösningarna för att förstora eller ladda ner pdf.
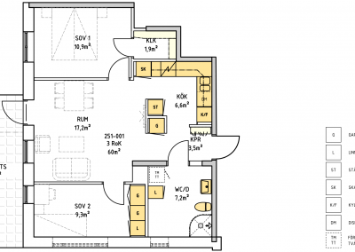
3 RoK 60/61 kvm + uteplats 14,6 kvm
Två lägenheter finns på bottenplan.
Klicka på planlösningarna för att förstora eller ladda ner pdf.
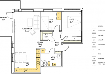
3 RoK 76 kvm + balkong 15 kvm
Två lägenheter finns på varje våningsplan 1 till och med 6.
Klicka på planlösningarna för att förstora eller ladda ner pdf.
4 RoK 113 kvm + 2 terrasser 19,7 kvm och 12 kvm
En lägenhet, finns på våningsplan 7.
Klicka på planlösningarna för att förstora eller ladda ner pdf.
4 RoK 117 kvm + 2 terrasser 14,4 kvm och 12 kvm
En lägenhet, finns på våningsplan 7.
Klicka på planlösningarna för att förstora eller ladda ner pdf.




















